WIP work in progress
D.I Gonzalo Diaz Malbran & Arq. Sancho Díaz Malbran
A coffee capsule designed from the essential.
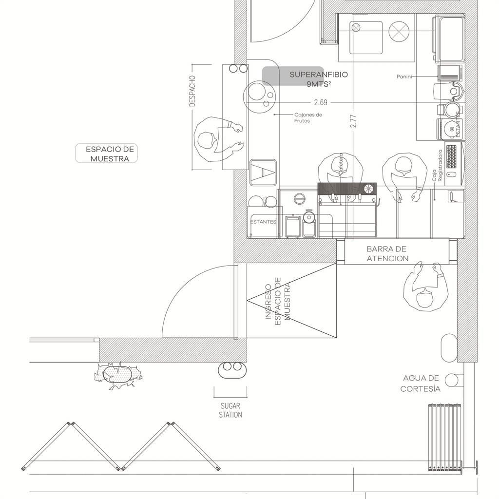
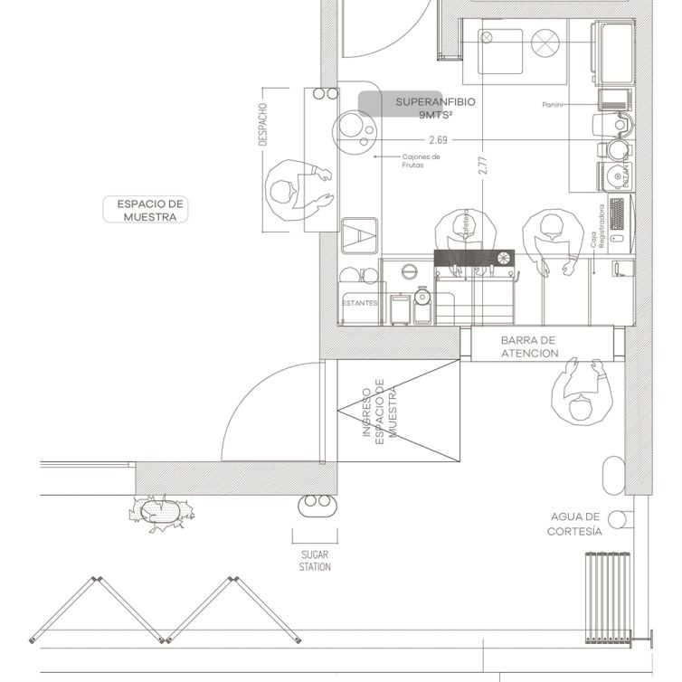
Superanfibio is a micro-space of just 9 m², designed as a take-away coffee bar within the WIP project (@workinprogress.wip)—a multidisciplinary space located in a building by architect Andrea Libovich, which brings together across its levels: an architecture studio, a design store with an art gallery, and a workshop/event space.
Emerging from that hybrid logic, this capsule was conceived under the idea of “elemental design”: a minimal structure that solves the essentials of service with both precision and character. Its entire 360° interior is clad in fine-grain black stone—an industrial material of strong visual impact yet soft to the touch—creating an enveloping, silent, and organic atmosphere.
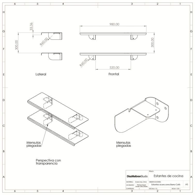
The space is completed with functional equipment painted in celadon green: shelving, countertops, accessories, and a special tap for complimentary water—an identifying gesture of the brand. The contrast between the dark interior and the green elements strengthens Superanfibio’s visual identity and brings warmth to the scene.
The opening to the street is resolved with a small metal structure inspired by traditional newsstands: a manually operated pivoting window that acts as an awning while also forming a bar counter for on-site consumption. This scenographic gesture adds human scale and encourages connection between barista and passerby.
The scope of the project included the design of the matte-painted metal shelving system, the exterior service structure with its opening mechanism, and the development of accessories like the complimentary water dispenser, waste bins, and sugar containers—each designed ad hoc in dialogue with the overall aesthetic. As in all of the brand’s locations, the green Guatemala marble countertop was a must.
A minimal, urban, and precise capsule. Where every centimeter was thoughtfully considered.
Client: Superanfibio
WWW: Superanfibio
IG: @superanfibio
Conjunción de identidad, espacio y entorno crearon este proyecto


